Home
About
Portfolio
Contact
Home
About
Portfolio
Contact
Project
A Colonial house at Tivim
pity to let this century old conception ebb away!
not if there could be someone to find a way.
Colonial House at Tivim
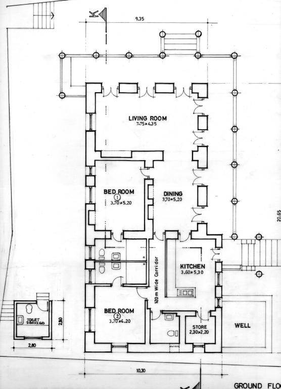
Existing Ground
Proposed
Roof Plan
Sections
Elevation